A cozy building plot becomes a home for a close-knit family with several generations in Valencia

A cozy building plot becomes a home for a close-knit family with several generations in Valencia

Image in modal format.

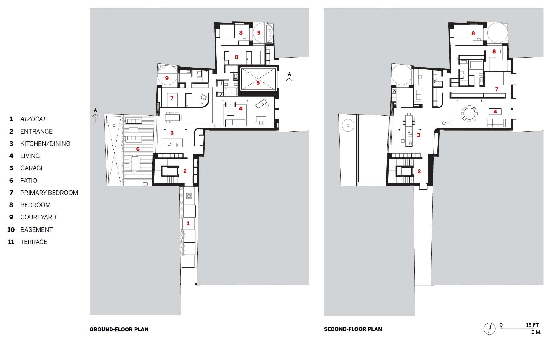
Nestled between small squares and historic buildings in a quiet old town in Valencia, one of Spain's liveliest cities on the Mediterranean, this simple apartment building offers three apartments on four floors for a couple and the families of their two adult children. Each family occupies one floor, the parents upstairs in a maisonette, which opens onto a large roof terrace that is shared by everyone. The clients, who work together in a family business, sold their three suburban homes to make the move, lured by the benefits of city life and the approach of being a multi-generational family.

Viciana Building

1

Viciana Building

2

Viciana Building
3

A staircase leads to the terrace (1), which serves as the family's main meeting place (2 and 3). Photos © Alejandro Gómez Vives, click to enlarge.

For local architect Jose Fernández-Llebrez, the challenge was to adapt each floor to its different needs while integrating the program into the deep, eccentric infill. The partitions shift inward and outward so that the terrace at the south end deviates well from the axis of the 30-foot-wide facade to the north. Despite this difficulty, he designed a large, continuous open plan space for the kitchen, living and dining areas, running from the front to the back of the property in each apartment, ensuring cross ventilation. He smoothed the irregular transition from front to back with rounded corners and two pairs of structural steel columns supporting each side of the room, painted a matte cream black like other metalwork. The columns are an unusual detail in the otherwise understated interiors, where floors are sand-colored limestone and kitchen appliances are hidden behind paneled walls, with minimalist island blocks for sinks and cooktops. Fernández-Llebrez explains that the columns helped keep structural costs down. Their cruciform profile may be reminiscent of Mies van der Rohe's Barcelona Pavilion, but their use in the spatial transition of these main rooms, with ceilings of up to 13 feet, also recalls similar strategies in neoclassical interiors, such as those of British architect Robert Adam.

Viciana Building

The custom-made kitchens are supported by cross-shaped columns. Photo © Alejandro Gómez Vives

Another difficulty of the site was access. On the north facade, composed of traditional balcony windows as required by local historic district regulations, a large oak door, not unlike the carriage entrances in historic upper-class urban homes, opens to a hydraulic platform that moves cars to and from the underground parking garage. With the main living spaces taking up the rest of the facade, the architect made the radical decision to place the main entrance door, along with the vertical circulation, on the other side of the property, accessible from around the block, at the end of a narrow private cul-de-sac leading from the corner of a nearby square. Known as aggravating Due to its Islamic origins, this paved room is closed off from the square by another monumental oak door. Like the project's other outdoor spaces, including two 10-square-foot courtyards for the bedrooms and bathrooms, the aggravating is planted with ferns and ivy covering the party walls. Other vegetation includes a row of five small cypress trees aggravating and a mature cypress tree in a light well at the end of the large back patio that connects a basement work area to the outdoor space.

Viciana Building

Plantings in the aggravating will cover the party walls. Photo © Alejandro Gómez Vives

Viciana Building

The balconies on the facade, required by local regulations, overlook a historic square. Photo © Alejandro Gómez Vives

The centerpiece of the family home is the top floor terrace with its 25-foot swimming pool, a mature lemon tree in a lavender bed and a Paellaa wood-fired stone oven for preparing paella, the famous local specialty. The view is dominated by the tiled dome of a 19th-century chapel and a Romanesque steeple, both directly opposite the rear terrace. “They seem to be above you,” says Fernández-Llebrez. “You hear the bells as if you were in the tower. The customers love it,” he continues, “and they have already picked a few lemons from the tree to make gin and tonics.”

Viciana Building

On the upper floor, large sliding doors lead to the terrace. Photo © Alejandro Gómez Vives

The organization of urban life around these private outdoor spaces is reflected in the site's rich history, uncovered during mandatory archaeological excavations. The most magnificent find was an 11th-century Islamic courtyard with a well-preserved hexagonal fountain with colored tiles, although it was claimed for a public collection under Spanish law. However, exceptions were made for some of the blue and white tiles of a 15th-century terrace that now pave part of the courtyard aggravatingand a Roman fountain visible under glass paving part of the cellar, along with some amphoras from the client's collection.

Viciana Building

During excavations, a Roman well displayed under glass was discovered. Photo © Alejandro Gómez Vives

Although influenced by history on all sides, the architect still created thoroughly contemporary homes with their master suites, multiple bathrooms, and large living spaces suitable for both casual family living and entertaining. However, the design also builds on the best of these traditions and acquires a noble grandeur and subtle elegance in its own way.

Viciana Building

Image courtesy of Fernández-Llebrez Architecture

Viciana Building

Image courtesy of Fernández-Llebrez Architecture

Credits

Architect:

Fernández-Llebrez Arquitectura – Jose Fernández-Llebrez, design director; Patricia García Martínez, Lucía González Suárez, Carmen Ferri Pardo, Alicia Adelantado Fernández, project team

Engineers:

Josep Solé Marzo Juan Manuel Sanchez Rodriguez (m/f/d); Miguel politely.

Advisor:

Remedios Martínez García (archaeological); The Lux (lighting); Agraph Studio (graphics)

General contractor:

AT4

Customer:

Viciana Building

Size:

14,050 square meters

Cost:

Withheld

Completion date:

May 2025

Sources

Doors:

Cechi Tapiceros (entrances); Madentia (wood and sliding door)

Interior:

Mobalco (milling plant); Nerinea (stone flooring); Isaval (color)

Elevators:

Otis (car and passenger)

Sanitary:

Oli, ritual, fountain, Inbani

Leave a comment

Your email address will not be published. Required fields are marked *